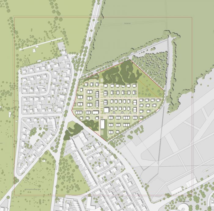
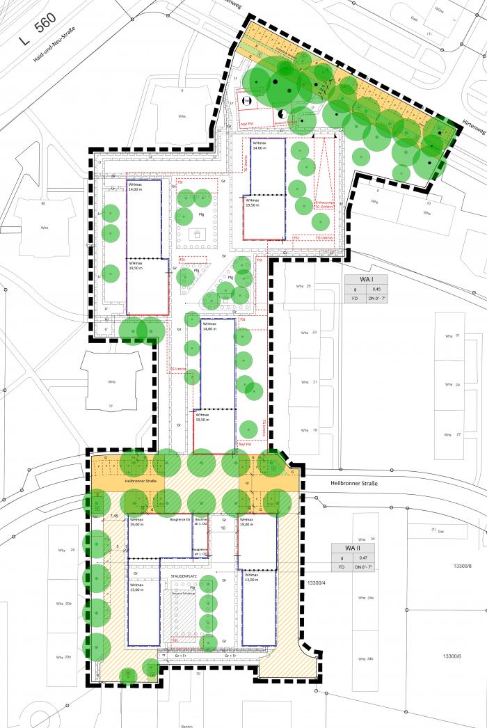
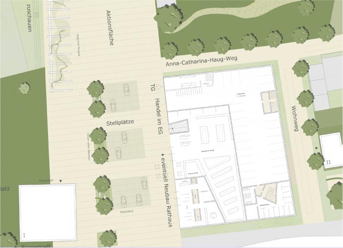
Gewerbe: Nachhaltig, Zukunftsfähig, Weiterentwickeln Bebauungsplanung und Verfahrensbetreuung ‚Nordbahnhofstraße / Eckartstraße‘ in Stuttgart Baumassenstudie ‚Bonländer Hauptstrasse 59‘ in Filderstadt Beratungspool des Kompetenzzentrums Wohnen BW Betreuung Konzeptvergabe in Hechingen, Sickingen; Entwurf: Rüdiger Mengis Neugestaltung des Hindenburgplatzes in Dusslingen Mühltorstraße in Lauffen am Neckar Betreuung Grundstücksverkaufsverfahren in Kernen-Rommelshausen; Entwurf: Werkgemeinschaft HHK Bebauungsplanung und Verfahrensbetreuung ‚Staudenplatz‘ in Karslruhe-Rintheim ‚Otto-Bauder-Anlage‘ in Seckenheim, Mannheim Neubau Kindertagesstätte Albert-Schweitzer-Schule, Göppingen Städtebaulicher Entwurf Jettenhartgärten in Nürtingen, Ortsteil Reudern Wohnanlage in Hybridbauweise mit 19 Wohnungen und Tiefgarage in Göppingen Wettbewerb ‚Limespark‘ in Öhringen Bürgerbeteiligungsverfahren ‚Obere Breite‘ in Baden-Baden Bebauungsplan ‚Im Brühl‘, 2. Änderung in Lauffen am Neckar Planungsworkshop ‚Eckener Straße‘ in Tübingen ‚Vielfalt macht Stadt‘ am Stöckach in Stuttgart Quartiersentwicklung in Kressbronn-Bachtobel Realisierungswettbewerb ‚Freibadareal‘ in Fellbach Konzept zur nachhaltigen Quartiersentwicklung ‚Obere Breite‘ Baden-Baden Städtebauliche Entwicklung ‚Stadtmitte‘ in Gaggenau Zentrale Dorfentwicklung in Bodnegg ‚Wohnen am Rosenstein‘ in Stuttgart Mehrfachbeauftragung ‚Spitalbühnd‘ in Offenburg Alte Bahndirektion in Stuttgart Städtebauliche Entwicklung ‚Obere Vorstadt‘ in Hechingen Städtebauliche Rahmenplanung Eisenbahnstraße Friedrichshafen – Fischbach ‚Häugern-Nord‘ in Weil der Stadt Ortsmitte Überauchen in der Gemeinde Brigachtal Breisacher Hof in Freiburg ‚Weberei Conrad‘ in Lörrach Bürgerhospital in Stuttgart Wohnbebauung Adalbert-Stifter-Straße in Freiberg Städtbauliche Neuordnung Eisenbahnstraße in Friedrichshafen-Fischbach Neubau des Bahnhofsbereichs in Wernau am Neckar ‚Mattenleestraße‘ ein gemischt genutztes Quartier in Schopfheim Wohnquartier Kronenbrauerei-Areal in Offenburg Wettbewerb Zuffenhäuser Gärten in Stuttgart – Zuffenhausen ‚Rintheimer Feld – Mehr Wohnen in der Mitte‘ in Karlsruhe Beteiligungsverfahren ‚Klosterstraße‘ in Kernen-Stetten Neuordnung Bahnhofsbereich in Rheinfelden Parkraum- und Mobilitätskonzeption ‚Östliche Innenstadt‘ in Metzingen Fünf Mehrfamilienhäuser mit 40 Wohnungen und Tiefgarage in Tübingen ‚Am Langen Rain‘ in Müllheim Feuerwehrareal / Schlossstraße in Sersheim Fünf Punkthäuser in Sonnenberg-West, Ludwigsburg Wohnquartier St. Vinzenz Pallotti in Stuttgart Birkach Beteiligungsverfahren zur Neugestaltung des Bahnhofsbereich in Wernau am Neckar Städtebaulicher Entwurf ‚Langenäcker‘ in Korb (Remstal) Neuordnung Sindelfinger Straße mit fünf Mehrfamilienhäusern und Tiefgarage in Tübingen BUGA in Mannheim ‚Nördliches Kocherufer‘ in Gaildorf Akademiegärten in Neuhausen auf den Fildern Wohnen am Theaterviertel ‚City-Prag‘ in Stuttgart Bebauungskonzept in Korntal-West Beteiligungsverfahren ‚Bahnhof der Zukunft‘ in Fellbach Neubau Zeppelinplatz mit städtebaulicher Neuordnung Mobilitätsknoten am Bahnhof in Fellbach Entwicklung Schulzentrum Maikler-Areal in Fellbach Neuordnung Neubau Alb-Fils-Klinik in Göppingen Städtebaulicher Entwurf und Vorhabensbezogener Bebauungsplan in Tübingen Neubau Zeppelinplatz mit städtebaulicher Neuordnung in Leinfelden-Echterdingen Zwei Mehrfamilienhäuser mit zwölf Wohnungen und gemeinsamer Tiefgarage in Stuttgart Killesberg Städtbauliche Entwicklung ‚Am Klemmbach‘ in Müllheim Nordbahnhof Friedhofstraße in Stuttgart Baulandentwicklung ‚Hirschlander Straße / Ulmenstraße‘ in Höfingen Neuordnung „Taylor-Barracks“ in Mannheim Bahnhofsareal Korntal in Korntal – Münchingen ‚Riedpark – eine neue Mitte‘ in Lauchringen Beteiligungsverfahren zur Neuordnung des Gebiets ‚Hangweide‘ der Diakonie Stetten Mehrfamilienhaus mit 30 Wohnungen und Tiefgarage in Ludwigsburg Pattonville Neue Ortsmitte in Walddorf Häslach Wohnen an der Akademie in Rastatt Überbauung Ölmühle in Tübingen Derendingen ‚Konversion Süd‘ in Bretten Neubau eines Bistros am Longwy-Platz zur Landesgartenschau 2012 in Nagold Neubau von zwei Pavillons zur Landesgartenschau 2012 in Nagold Energetische Fassadenanierung des Rathauses in Leinfelden-Echterdingen Neubau Treffpunkt Baden-Württemberg zur Landesgartenschau in Nagold mit anschließendem Umbau zum Kinderhaus ‚Quartier Südliche Ötlinger Straße‘ in Lörrach Städtebauliche Konzeptstudie ‚Neckarbogen‘ in Tübingen Städtebaulicher Entwurf mit Bürgerbeteiligungsverfahren ‚Neue Weststadt‘ in Esslingen Städtebauliche Neuordnung Bereich ‚Breitwiesen Areal‘ in Hochdorf Olga-Areal in Stuttgart Neubebauung ‚Wennfelder Garten‘ in Tübingen ‚Allgenerationenhaus im Scharnhauser Park‘ in Ostfildern ‚Neuordnung Bodanwerft‘ in Kressbronn am Bodensee Beteiligungsverfahren ‚Rahmenplanung‘ in Offenburg-Albersbösch Innenentwicklung Ortsteil Musberg, Teilgebiete Friedrichstraße, Stadt Leinfelden – Echterdingen Wohnbebauung Jahnstraße in Ludwigsburg – Poppenweiler Innerstädtisches Entwicklungskonzept in Fellbach Städtebaulicher Entwurf ‚Neue Weststadt‘ in Esslingen Forschungs- und Laborgebäude für Lebenswissenschaften der HU in Berlin Städtebauliches Gutachterverfahren Ortskern Duerrmenz, Große Kreisstadt Mühlacker Innenentwicklung ‚St. Gallusstraße, Frommern‘ in Balingen Areal Gnesener- / Hofener Straße in Stuttgart – Bad Cannstatt Neue Mitte/Nanz-Areal in Leinfelden- Echterdingen Neubebauung auf der Karlshöhe in Pfullingen ‚Alte Weberei‘ in Tübingen ‚Kleine Landesgartenschau 2023‘ in Balingen Gestaltungskonzept für die Innenstadt in Baden-Baden Innenentwicklung ‚Blessingareal‘ in Pfullingen Innenentwicklung ‚Östlich der Burgstraße‘ in Leinfelden – Echterdingen Neubau Bundesministerium am Kapelleufer in Berlin Pilotprojekt ‚Familienfreundliches Wohnen in Reutlingen‘ Wohnpark ehem. SV-Areal in Wiesbaden-Dotzheim Bebauungsplanung der Südstadt in Tübingen Stuttgarter Straße / Französisches Viertel in Tübingen Baugebiet ‚Fürsten‘ in Balingen – Frommern ‚wohnen 60 Plus‘ in Waldbronn Neubebauung Wildeckstraße in Stuttgart-Feuerbach Kaufland in Wertheim ‚Büdingen-Areal‘ in Konstanz ‚Kesslerweg‘ in Leinfelden-Echterdingen, Oberaichen Stadt Mannheim, Quadrat C7 ‚Neues Urbanes Wohnen‘ in Mannheim Neuordnung Hauptstraße 53-79 inLeinfelden-Echterdingen Neubau Mehrfamilienhaus mit Tiefgarage in Leinfelden-Echterdingen, Musberg Wohn- und Geschäftshaus, Marienburgerstraße in Tübingen Konversion Schlachthof/Viehhof in Karlsruhe Investorenverfahren Maybachstraße in Stuttgart Leitfaden für Baugemeinschaften ‚Grüne Höfe‘ in Esslingen am Neckar Neubau Reihenhausbebauung in Reutlingen Gutachten Neues Urbanes Wohnen in Baugemeinschaften für die Landeshauptstadt Stuttgart Bebauungsplanung ‚Grünfuge‘ in Ludwigsburg – Poppenweiler, Jahnstraße Wohn- und Geschäftshaus ‚Haus am Platz‘ in Tübingen Planungsgebiet in Poppenweiler, Jahnstraße Kurpark in Grafenhausen Mehrfamilienhaus ‚Scharnhauser Park‘ in Ostfildern LOFT-Haus in Tübingen Wohn- und Geschäftshaus Mömpelgarder Weg in Tübingen Umbau ehemaliger Gasthof in Mühlhausen-Ehingen (Hohentwiel)
Neubau Treffpunkt Baden-Württemberg zur Landesgartenschau in Nagold mit anschließendem Umbau zum Kinderhaus